La actuación rehabilita una casa de Pueblo en Godella, Valencia. El valor histórico de la fachada nos invita a mantener el diseño original actuando tan solo a nivel de carpinterías exteriores.

Dada la antiguedad de la misma, más de un siglo, la intervención atiende con detalle todos los elementos constructivos, recuperando la envolvente del edificio, conservando los distintos motivos decorativos en carpinterías de madera y pinturas en las bóbedas de los revoltones de los forjados.




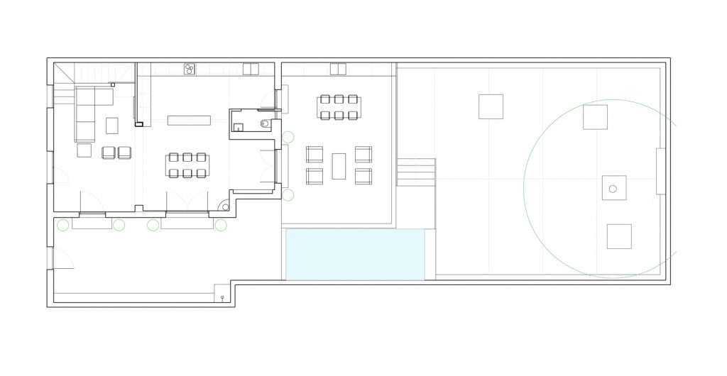
La distribución planta baja plantea un gran espacio abierto que integra el recibidor, salon, comedor y cocina. Potenciando la ilumianción natural con un patio perimetral blanco.

La nueva cocina, completamente equipada, queda integrada en el espacio de planta baja resolviendo sus acabados en tonos claros. Cabe destacar la iluminación natural de todo el conjunto.



Comments are closed